T-stuk, zonder nivelleerunits

Art.nr. 7403836 | EAN 4012195845997

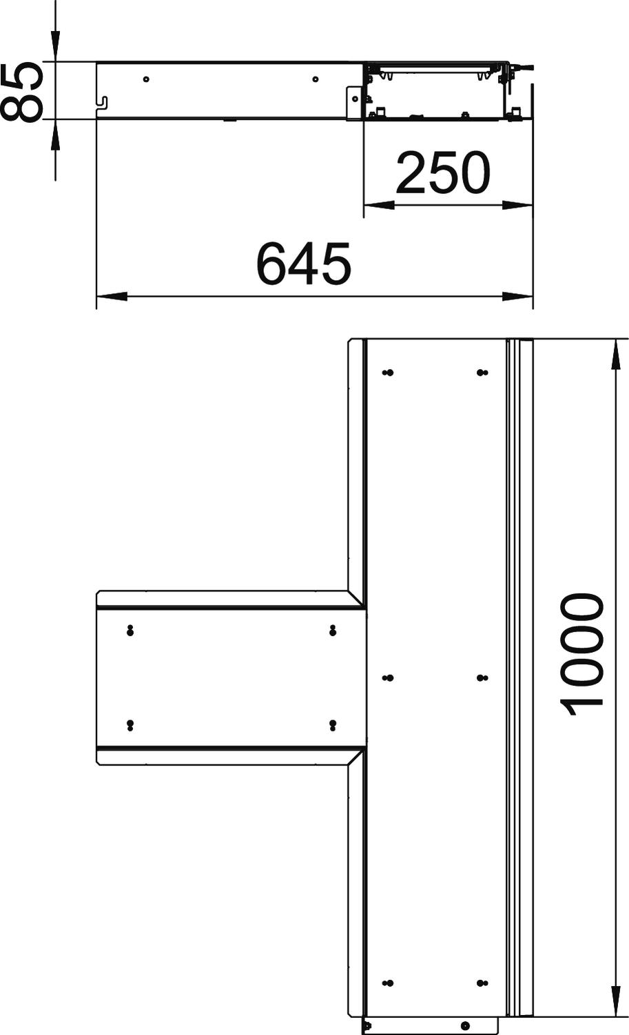
7403836 / OKB TS 25085 ON
250 mm
Productbeschrijving
Productbeschrijving
Verbinding van een kanaal met borstelstrip en een kanaal voor kabeldistributie, bestaande uit kanaalbodemdelen, twee deksels, in hoogte verstelbare zijprofielen en aan de wandzijde bevestigde borstelstrip voor kabeluitvoer. Meegeleverd zijn: twee dekselvoegafdichtingen en twee verbinders.
Voor de hoogteverstelling zijn 6 nivelleereenheden nodig.
  • Verband der Elektrotechnik, Elektronik, Informationstechnik e.V., Duitsland
  • Communautés Européennes, EG-conformiteitsverklaring volgens EG-richtlijnen
  • CO₂ footprint (PCF)
  • Packaging made entirely from recycled cardboard
Technische gegevens

Technische gegevens

Afdekking montage-opening nee
Afdichtingsinbouwmogelijkheid nee
Afm. h 85 mm
Breedte 250 mm
CO2-voetafdruk (GWP) van wieg tot poort 78,5261 kg CO2e / 1 Stuk
Deksel afneembaar ja
Dekselbevestiging borgend nee
Functie Aftakking
Geschikt voor dillitatievoeg nee
Geschikt voor door afwerkvloer overdekt ondervloerkanaal nee
Geschikt voor open ondervloerkanaal, gelijk aan de afwerkvloer ja
Geschikt voor vlak gesloten ondervloerkanaal nee
Hoogte 93 mm
Inbouwopening voor vloeropbouwtank nee
Lengte 1000 mm
Materiaal Staal
Met aansluitopening nee
Met overstek ja
met potentiaalvereffening nee
Met scheidingswand nee
Minimale afwerkvloerhoogte 93
Ontkoppelbaar ja
Oppervlak bandverzinkt
Scheidingswandbevestiging steken
Vloeronderhoud Droog
Vloerplaat ja
Alle typen

Alle typen

Type Breedte Art.nr. Aantal kl. VKE
OKB TS 25085 ON 250 mm 7403836
1 Stuks
Downloads

Download

Voor dit product zijn geen bestekteksten beschikbaar